長野県長野市三輪 戸建(物件番号:1589)
※画像クリックで大きな画像が見れます
★本郷駅徒歩3分♪★周辺は生活環境が充実したエリアです★都市ガスで光熱費が経済的!★駐車場1台無料で使用できます♪★独立洗面台、追い焚き機能、温水洗浄暖房便座完備★専用テラス付★
所在地 | 長野県長野市三輪 | ||
---|---|---|---|
アクセス | 長野電鉄長野線 本郷駅 徒歩3分 | 物件番号 | 1589 |
物件種別 | 戸建 | 建物構造 | 木造 |
家賃 | 90,000円 | 管理費等 | - |
礼金 | - | 敷金/保証金 | 180,000円 |
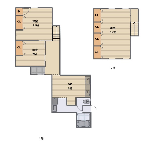
間取り | 3DK | 間取り内訳 | 洋17/洋11/洋7/洋8 |
面積 | 99.01㎡ | 築年月 | 1972年04月 |
所在階/建物階 | 2階/2階建 | 駐車場 | 無料 |
契約期間 | 24カ月 | 入居時期 | 即入居可 |
保険等 | 家財保険 要加入 | ||
入居条件 | 楽器:不可/ペット:不可 | ||
設備 | コンロ数:3口/コンロ:設置済み(IH)/トイレ様式:洋式/トイレ状況:水洗/トイレ:シャワートイレ/バストイレ別:バストイレ別/バス:有(専用)/給湯/追い焚き/洗濯機置場:有(室内)/TVアンテナ/エアコン/洗面化粧台/フローリング/最上階/テラス:無/収納/角部屋/シャワー/礼金不要/ガス:都市ガス/水道:公営/排水:公共下水/駐車場:有(無料) | ||
特記事項 | ※保証会社利用必須。初回総家賃の50%(最低保証料20000円)、月額総賃料の1%(最低保証料750円、引落手数料無料)。 ※1年未満の短期解約の場合、違約金として家賃の1か月分頂きます。※退去時ルームクリーニング代・エアコンクリーニング代は必ずかかります。 | ||
備考 | ◆創業65年◆弊社管理物件は更新手数料1万円のみ!保証会社の更新料も無料です!長く住み続けたいお客様に大変魅力的な会社です。 ぜひ更新料比較してみて下さい。 |